板式蒸发器在工业蒸发设备中地位重要,凭借独特设计与原理,应用广泛。河南省九冶化工设备有限公司在其研发制造方面经验颇丰。

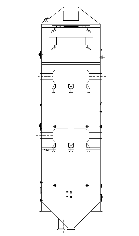
1:设备构成
由板式换热器和分离器构成。换热器由带特殊波纹的金属板片叠装,加热与产品板片交替,形成加热、产品通道,产品与加热介质逆流强化传热。板片组安装于固定板和活动板间,以螺钉固定,采用无胶嵌入式垫片密封,便于安装拆卸。分离器则负责高效分离蒸发产生的汽液混合物。
2:工作原理
待蒸发物料进入蒸发器,在板式换热器板片间流动,管外加热介质通过板片传热。特殊波纹使物料形成高强度湍流,提升传热系数,物料受热迅速蒸发,依蒸发器类型形成不同液膜。汽液混合物进入分离器,经离心力等作用分离,浓缩物料从底部排出,二次蒸汽从顶部排出,可在多效蒸发或 MVR 系统中循环利用。
3:技术优势
01:高效节能
逆流换热充分利用温差,传热系数比传统壳管式蒸发器高数倍,能在 3 - 5℃低温差下工作,减少蒸汽用量,应用于 MVR 系统可节省压缩机功率。
02:适应复杂物料
物料流速可控,低流速也能形成湍流,适应含少量不溶固体、高粘度及热敏性物料,物料停留时间短,降低变质风险。
03:操作弹性大
可调节循环泵与加热介质流量,灵活调整蒸发强度和浓缩比,满足不同生产工艺需求。
04:高传热效率
溶液高速流动降低传热边界层厚度,传热效率比自然循环蒸发器高,满足大规模生产产能要求。
05:自动化程度高
配备自动化控制系统,实时监测调节温度、压力等参数,操作人员在控制室即可操作,保障生产稳定可靠。
4:应用领域
01;化工行业
用于烧碱、纯碱生产及有机化工反应产物分离提纯。
02:能源行业
在余热回收系统中用于废热蒸汽冷凝,提高能源利用率
03:食品饮料行业
浓缩果汁、糖浆等,低温蒸发保产品品质
04:环保领域
处理高浓度有机废水、含盐废水及工业废气吸收液。
05:制药行业
用于药物中间体浓缩、结晶与溶剂回收
九冶化工的板式蒸发器以先进技术、卓越性能和广泛适用性,为各行业提供高效蒸发方案,助力工业高效、可持续发展。
河南省九冶化工设备有限公司

河南省九冶化工设备有限公司成立于1999年,是集科研、设计、制作、安装、服务为一体的综合性高新技术企业,是河南省专精特新小巨人企业。公司主要从事压力容器、各类蒸发器、化工罐槽、塔器,生物发酵设备的设计、制作和安装。主导产品各类蒸发器,广泛应用于氧化铝、造纸、污水处理、生物发酵、食品、化工、医药、制盐等行业。其中,节能型七效两段降膜蒸发器技术处于世界领先水平,公司拥有30余项蒸发器等设备的专利技术。在公司发展的风雨历程中,产品成功进入魏桥铝电、信发集团、中铝集团、锦江集团、俄铝集团、广铝集团、酒钢集团、天桂铝业、贵州其亚、鲁北化工集团、中超铝业等氧化铝企业并赢得了很好的声誉,同时我们的产品也成功应用到海外市场,如俄铝肯尼亚项目、酒钢牙买加项目、锦江印尼和中铝印尼项目等,产品赢得了广阔的市场天地和良好的社会口碑。